Bytbil är en del av Vend. Vend är ansvarig för dina data på denna webbplats.

Läs mer här

MNAB Åretrunt villavagn inkl plats på Grottbyns camping

1 000 000 kr
Märke
MNAB
Fordonstyp
Övrigt
Årsmodell
2023
Första gång i trafik
0001-01
Regnr
-
Totalvikt
Uppgift saknas
Längd
Uppgift saknas
Antal bäddar
Uppgift saknas
Färg

Försäkring

Hitta rätt bilförsäkring för dig

Utrustning

Ingen utrustning har angivits av handlaren

Beskrivning och övrig information
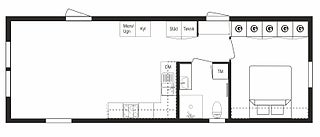
Året Runt Villavagn i naturskön miljö Vi har nu fått i uppdrag att förmedla denna fina Svenskbyggda villavagn på hela 50kvm placerad i en underbar naturskön miljö långt ifrån storstads stressen på Grottbyns Camping. Denna välisolerade året runt modell med vattenburen golvvärme och 3-glas fönster står på en plats tillgänglig hela året med vatten, avlopp o 16 A 3-fas el. Planlösningen erbjuder ett stort rymligt sovrum fullt med förvaring och plats för 180x200cm sängar, ett rejält badrum med dusch, toa och handfat samt tvättmaskin med torktumlare. Här finns också ett väldigt rejält kök i öppen planlösning med vardagsrummet som skapar härliga ytor för umgänge. Vagnen kommer säljas omöblerad. Utanför finns en stor altan samt ett vintertält som ingår i affären. Det finns en visst behov av skyndsam affär så priset och tillträde kan diskuteras Säsongsavtal tecknas direkt mellan köpare och campingen, kostnad ca 3000kr/mån som faktureras halvårsvis För mer information och visning boka tid med Morgan Nyman
Auktoriserad återförsäljare av ABI.
Org.nr 556655-0298

Företaget har godkänt att de endast annonserar produkter och tjänster som är i enlighet med gällande lag.
Anmäl annons
Scrolla till toppen av sidan
Ring
Till Bytbil.com